Skip to main content

Fabricating a Bespoke Bath

A worked example for a custom bath

Here is a worked example showing how from a customer's initial request we produce production drawings which are discussed with the client and once confirmed enable us to fabricate the final custom bath to the exact bespoke requirements.

Initial request from client

Initial request from client

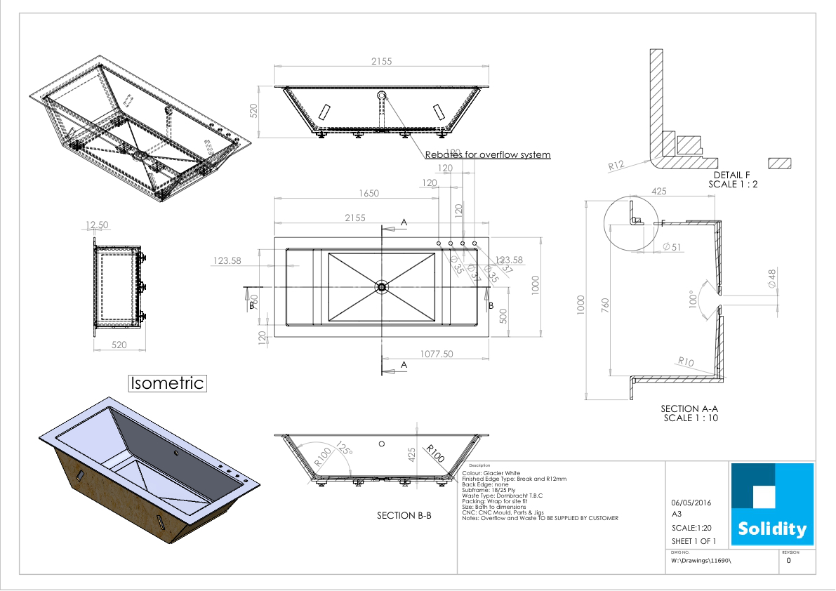
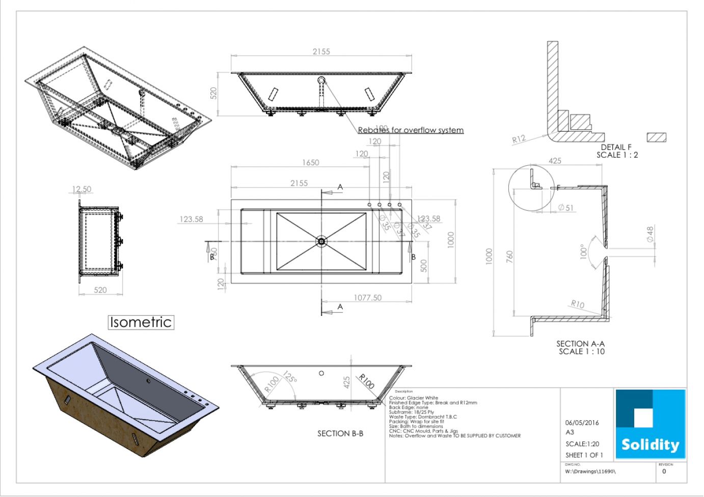
Production drawing

Production drawing

Final product - custom bath